Sunny village

Таунхаузи у закритому котеджному містечку в Підберізцях, біля Винників

Сучасний формат житла для життя поруч зі Львовом: простір, приватність, продумана забудова.

Про проєкт

Сучасний простір
для життя

Закрите котеджне містечко з таунхаузів спокійне передмістя Львова, 12 км до центру

Котеджне містечко

78–140 м²

Площа ділянок

1,5–3 сот

Від

$650 / м²

Про містечко

Sunny Village — це закрите котеджне містечко у форматі таунхаузів, де повсякденні питання бере на себе власна управлінська компанія.

Мешканці не займаються обслуговуванням території чи інженерії — усе організовано централізовано.

Управлінська компанія забезпечує:

  • прибирання території та чистку від снігу
  • косіння трави, озеленення, полив і освітлення
  • обслуговування басейну та спортзалу
  • утримання дитячого майданчика
  • відеонагляд і охорону території
  • обслуговування укриття
  • контроль і сервіс біосептиків
  • обслуговування централізованої системи водопостачання

Це формат для тих, хто хоче заміське життя з комфортом міського рівня — без побутових клопотів і з відчуттям порядку та безпеки.

Здача черг

Будівництво вже розпочато

Здача першої черги

I квартал

2026 року

залишилось вільних котеджів 3 з 6

Здача другої черги

II квартал

2026 року

залишилось вільних котеджів 6

Здача третьої черги

IV квартал

2026 року

Продажі ще не розпочато

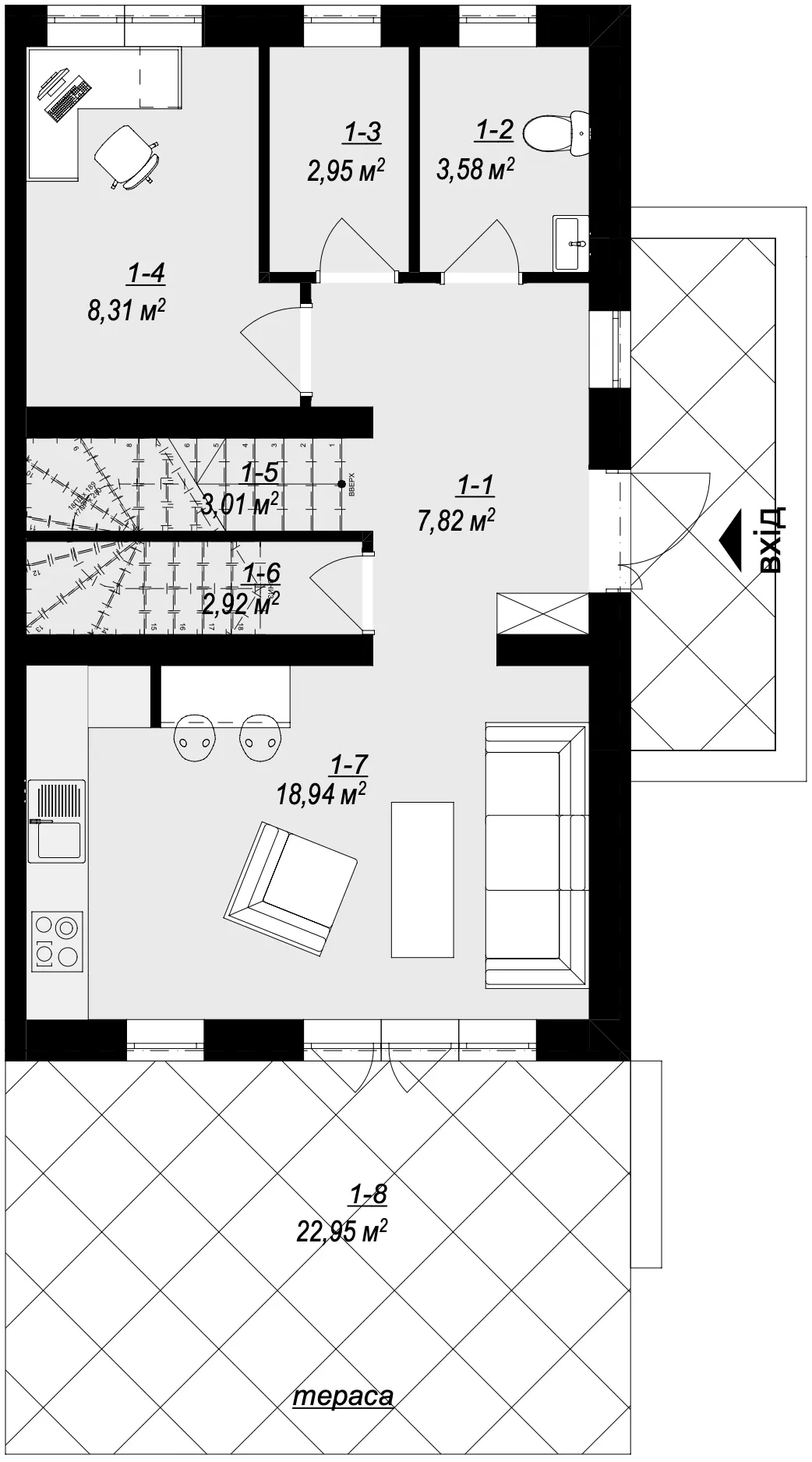
Генплан котеджів

Черга 2

В роботі

Візуальні зображення та плани котеджів будуть доступні пізніше.

Переваги

Основні переваги

Безпека 24/7

Закрита територія з цілодобовим відеонаглядом та контрольованим доступом лише для мешканців.

Тільки для мешканців

Власний басейн з підігрівом і закритий спортивний зал у приміщенні — виключно для жителів містечка.

Простір для дітей

Дитячий майданчик у внутрішньому дворі: пісочниця, гірки, гойдалки та ігрові елементи для дітей різного віку.

Максимальний захист

Монолітне підземне укриття для безпеки мешканців містечка.

Завжди чиста вода

Централізована станція очищення води зі свердловини — стабільна якість і чиста вода в кожному будинку.

Світло за будь-яких умов

Передбачені умови для підключення незалежного джерела електроживлення будинку за підтримки партнерів.

Чистота і порядок

Власна управлінська компанія бере на себе щоденне обслуговування території та технічні дрібниці: заміна освітлення, дрібні ремонти, контроль справності спільних зон.

Контроль на кожному етапі

Будівництво з дотриманням вимог ДБН і ДСТУ, використання перевірених технологій та постійний проектний нагляд.

Гнучкі умови покупки

Можливість розтермінування платежів до завершення будівництва.

Державні програми

Доступна купівля за програмами «єОселя» та «єВідновлення» (сертифікат).

Локація

С. Підберізці

Передмістя Львова, напрям Винники

Дивитись на карті

10 хв

Львів (10 км)

5 хв

Винники (3 км)

3 хв

Магазин (200 м)

10 хв

Школа та дитячий садок (8 км)

Залишити запит

Ви шукаєте будинок для себе чи для інвестування?

Коли плануєте покупку?

Хочете домовитись про зустріч?